Vaakunapuiston päiväkoti ”Varpu”

2022, tutkimus

Esittely

Suunnittelijat:
Teemu-Oskari Kiiveri, arkkitehti SAFA & Pinja Finell, arkkitehti SAFA

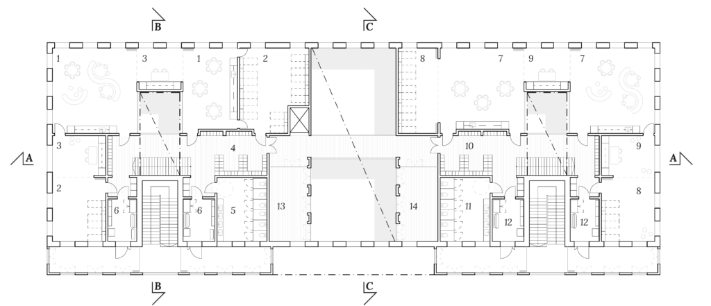
Toppilansaaren ja Hietasaaren alue on osa Oulun historiallista huvila-aluetta, jolle päiväkodin rakennuspaikkakin sijoittuu. Päiväkoti Varpu asettuu samaan kortteliin suojeltujen rakennusten, Lundmanin huvilan ja sen aittarakennuksen, kanssa, sekä Villa Hannalan läheisyyteen. Konseptin ja tontinkäytön perustat ovatkin alueen historiassa. Varpu muodostaa yhdessä Lundmanin huvilan rakennusten kanssa ikään kuin laajemman kartanon piha, jossa päiväkoti muodostaa korttelin päärakennuksen. Päiväkodin päärakennus asettuu koko pituudellaan Hietasaarentien puoleiselle rakennusalueen rajalle asemakaavan mukaisesti. 

Rakennuksen aumakatto vastaa asemakaavan vaatimuksiin harmonisesta kattomaailmasta, ja tekniset tilat sekä aurinkokeräimet piiloutuvat katon tasaiselle osalle ja sen alle. Punaisella värityksellään päiväkoti sekä vastaa määrättyä kaupunkikuvaa että sitoo itsensä osaksi alueen huvilahistoriaa. Korttelin pää ja sivurakennukset rajaavat sisälleen vehreän ja avaran pihan, joka on jaoteltu toiminnallisuuksiltaan erilaisiin alueisiin. Jokaisesta lähestymissuunnasta on järjestetty saattoreitit, ja niiden yhteyteen on sijoitettu katetut vaunu- ja pyörävarastot. Huoltoliikenne- ja henkilöautoliikenne saapuu Lundmaninkujan kautta, ja tälle reitille sijoittuu myös henkilökunnan pysäköintipaikat, Lundmanin huvilan ajoyhteys sekä koko korttelin jätehuolto.  

Scroll to Top