Vikuri – Kurikkatalon yleinen arkkitehtuurikilpailu
Yläluokka / 2025
Selostus
Suunnittelija: Teemu-Oskari Kiiveri, arkkitehti SAFA
Uusi Kurikkatalo asettuu etelä-pohjoissuunnassa muodoltaan osaksi suorakulmion mallisien rakennusten ketjua. Rakennus muodostuu kolmesta yhtenevästä rakennusmassasta, jotka limittyvät keskenään. Näin muodostuva polveileva massa sekä rajaa rakennuksen ympärille luonteeltaan erilaisia kaupunkitiloja että lisää luonnonvaloa ja näkymiä sisätiloissa. Rakennuksen eteläpuolelle sijoittuva katos, yhdessä kellotornin kanssa, johdattaa kävijät pääsisäänkäynnille. Torin ja uuden Kurikkatalon väliin sijoittuva kellotorni toimii myös luontevana maamerkkinä ja kohtaamispaikkana. Uusi Kurikkatalo jatkaa etelästä kulkevan tiilirakennusten sarjaa. Julkisivun päämateriaalina on monisävyinen punatiili, jota korostavat puiset rimoitukset sekä messinkiset yksityiskohdat. Katutilassa jatketaan rakennusalueella jo olevaa ruudukkomaista koristekiveystä.
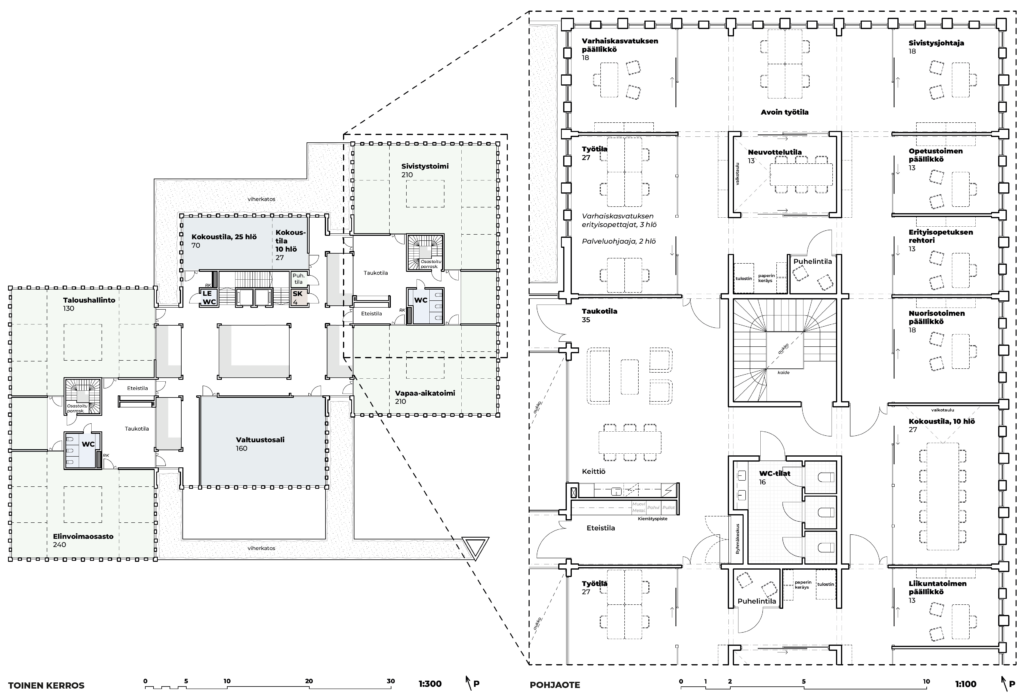
Sisätiloissa keskeisenä materiaalina on puu, mikä luo lämpimän tunnelman, kuvastaa kestävää rakentamista sekä parantaa tilojen sisäilma- ja akustiikkaolosuhteita. Selkeät linjat ja minimalistinen muotokieli korostavat puurakentamista sekä liimaapuupilari- ja palkkirunkoa. Sisäiset toiminnot kiertyvät aulaan, keskimmäisen massan valokuilun ympärille. Avoin tilarakenne muodostaa visuaalisia yhteyksiä, mikä edelleen edistää kerrosten välistä vuorovaikutusta. Valokuilun ympärille sijoittuvat myös luonteeltaan julkisimmat tilat, kuten aula, lämpiö, kahvio, infopiste, asiakaspalvelutila sekä kokoushuoneet ja valtuustosali. Ikkunoilla ja pilareilla rytmitetyt ulkoseinät mahdollistavat sekä muuntojoustavat toimitilat että valoisat työskentelyolosuhteet.






